【新宿区】造作空間で暮らしを豊かに彩る | OB様邸訪問会

WEBでの受付を終了いたしました。
ご参加をご希望の方は、下記コールセンターへお問い合わせください。
コールセンター:0120-489-175
造作空間で暮らしを豊かに彩る住まい
「子育てのしやすい安定した環境を整えたい」、「家事を家族と無理なくシェアしやすい住空間にしたい」、「好きなモノに囲まれた快適な暮らしにしたい」etc…
家づくりをしようと思われるきっかけは、ご家族ごとに違います。あなたの家づくりのきっかけは何ですか?
今回、お施主様のご厚意により見学会をさせていただくのは、築浅マンションの最上階住戸を理想の暮らしに合わせて、造作で彩り豊かにリノベーションしたお住まいです。都心部で、こだわりの素材や空間の造り込みで実現された「お施主様らしさ」のある住まいで、あなたの住まいに活かせるアイデアを見学しに来てください。
◆この物件の見どころ◆
①3方角部屋の南側に広がるリビング
洋室1とリビング間の幅広の造作建具(扉)を3枚とも引き込むと、広い南向きリビングに。
普段は都心でありながら開放的で寛げる広々とした空間として、来客時には間仕切るなどフレキシブルに変化します。南側特有の豊かな自然光を、キッチンからリビングまで続くネイビーで仕上げたアクセントウォールが柔らかく受け止める施主様のこだわりが詰まった唯一無二の空間です。
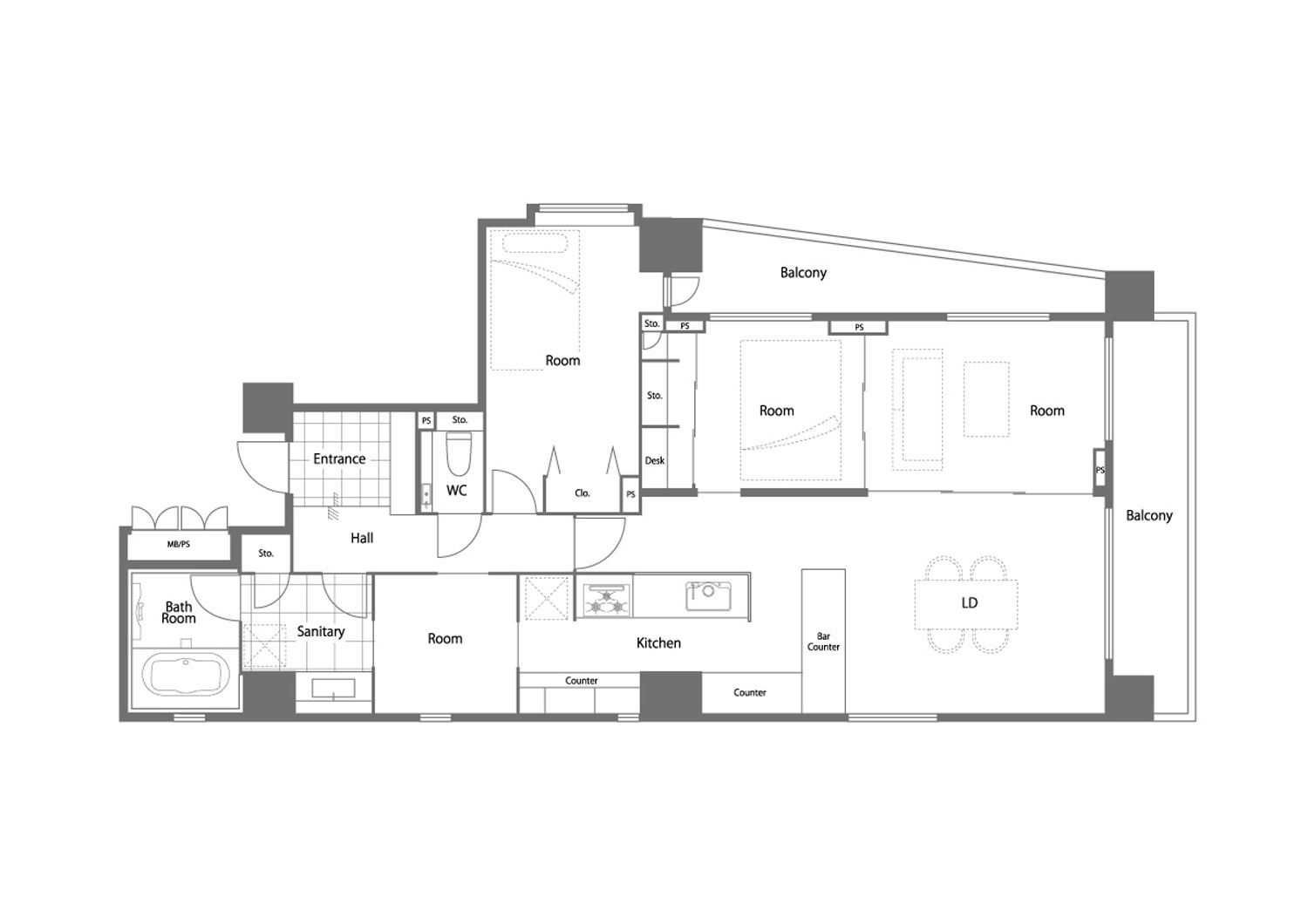
間取り:before▼

間取り:after▼

②造作で造り込んだ、こだわりの空間
キッチンに隣接するバーカウンターや、使い勝手に合わせたデスクスペース、洗面台を、既製品ではなく造作によるオリジナル仕様で仕上げています。中でもこだわったバーカウンターは、キッチン空間全体と合わせて「ステンレス、集成材、黒アイアン、タイル」を使い、ほどよいカジュアルさのある大人な空間になっています。

③躯体表しにしたLDKの天井
マンションの最上階は全て解体すると、コンクリートの天井に断熱材を施している事が多く、コンクリート面を表して計画をする事ができないのがほとんどです。その為、天井を組む計画にしていました。解体後、外断熱で施工されており躯体もきれいであったことから、お施主様のご意向で着工後に計画変更。天高が上がり、照明計画も再検討したことで、より理想に近いデザインとなりました。

フリーダムでは、新型コロナウイルスの感染拡大に伴い、お客様の安全を最優先に考え、安心してご来場いただき、家づくりをご検討していただけるよう、衛生ポリシーを定め、お客様をお迎えしております。
【ポリシーについて】
・スタジオ内の換気を定期的に実施します。
・打合せ時の社員のマスク着用、手指のアルコール消毒の徹底。
・お客様へ手指アルコール消毒のお願い。
・打合せ場所のテーブル、椅子、その他設備機器の除菌消毒。
・打合せ場所につきましては、スタジオのみならず、オンラインなどお客様のご要望に応じてご対応させていただきます。
※新型コロナウイルスの感染拡大状況によっては、ポリシー内容が変わる場合がございます。
お客様がご安心してご来場いただけるよう、今後も努めて参ります。
何卒ご理解の賜りますよう、よろしくお願い申し上げます。
・当日は、マスク着用もしくはマスクご持参でご来場ください。
※会場内では、必ずマスク着用をお願いします。
・会場内では、当方で用意する使い捨て手袋の着用をお願いします。
・衛生ポリシーにもございますが、ご来場時に手指アルコール消毒をお願いします。
皆様に安心してご参加いただけるよう、ご理解・ご協力の程、何卒よろしくお願い申し上げます。