【横浜市】大人な空間×子供の時間|OB様邸訪問会

WEBでの受付を終了いたしました。
ご参加をご希望の方は、下記コールセンターへお問い合わせください。
コールセンター:0120-489-175
この物件の特徴
①家族の距離感が心地良い間取り
②家具のようなデザイン性の高いオーダーキッチン
③リビングスペースを最大化させる計画性の高い収納空間
『大人の空間×子供の時間』
「子育てのしやすい安定した環境を整えたい」、「家事を家族と無理なくシェアしやすい住空間にしたい」、「好きなモノに囲まれた快適な暮らしにしたい」etc…
家づくりをしようと思われるきっかけは、ご家族ごとに違います。あなたの家づくりのきっかけは何ですか?
今回、お施主様のご厚意により見学会をさせていただくのは、利便性の高い駅近の立地に建つマンションの1戸を、街の景観を取込んだような洗練されたデザインへフルリノベーションしたお住まいです。お子様の勉強や遊びの見守りもしやすい間取りながら、家具のようなデザインのキッチンやグレートーンで統一されたハイグレードホテルのような落ち着いた居心地の良い空間で、あなたの住まいに活かせるアイデアを見学しに来てください。
◆この物件の見どころ◆
①家族の距離感が心地良い間取り
居室をリビングに隣接するように配置。また、お子様のスタディースペースは、キッチンサイドの窓際に配置し、家族の気配を感じやすい間取りになっています。また、スタディースペースはキッチンのデザインと合わせたオーダー家具で、棚など収納の配置は勉強に集中しやすいシンプルな造りで仕上げています。
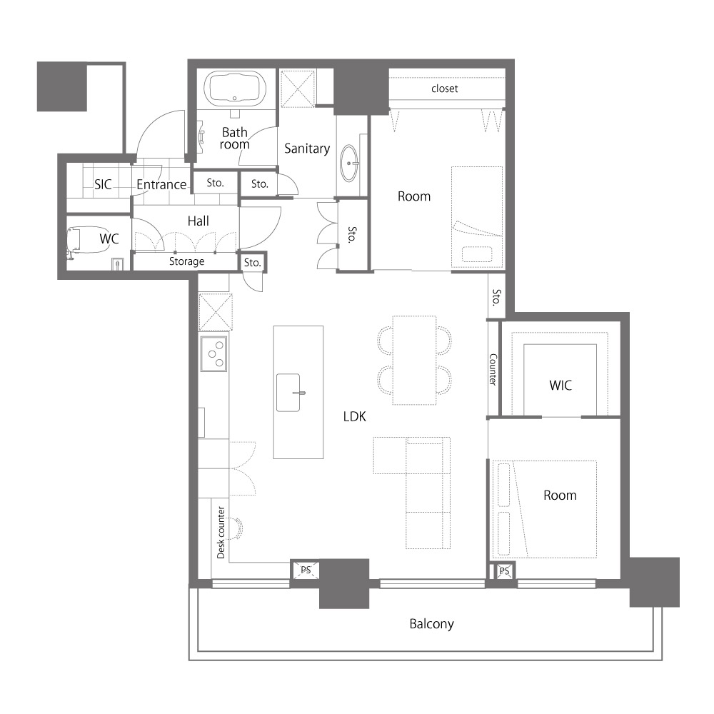
間取り:before▼

間取り:after▼

②家具のようなデザイン性の高いオーダーキッチン
LDKの入り口に配置したのは、スタイリッシュなデザインのオーダーキッチン。コンロは壁側に、シンクはリビング側に配置した2列型で、調理中の油ハネを軽減しつつ家族の様子が見えるキッチンになっています。収納ではスペース効率の良い壁面収納を採用。家電など生活感が出やすいキッチン用品も、棚の高さや横幅まで細かく計画し、整理整頓がしやすく、調理時にも動きやすい工夫を凝らすことで、来客時でも生活感が出すぎないようにしています。

③リビングスペースを最大化させる計画性の高い収納空間
立体的な空間検討を重ね、収納空間に発生しやすい無駄を減らすことでリビングなど家族の居場所を多く取っています。また、ご家族の生活動線上に適切に収納空間を配置することで、自然と片付けがしやすくスッキリとした空間を維持しやすい工夫もしています。
【当日のご来場に際して】
・当日は、マスク着用もしくはマスクご持参でご来場ください。
※会場内では、必ずマスク着用をお願いします。
・会場内では、当方で用意する使い捨て手袋の着用をお願いします。
・お子様のご入場はご遠慮ください。
・衛生ポリシーにもございますが、ご来場時に手指アルコール消毒をお願いします。
皆様に安心してご参加いただけるよう、ご理解・ご協力の程、何卒よろしくお願い申し上げます。
フリーダムでは、新型コロナウイルスの感染拡大に伴い、お客様の安全を最優先に考え、安心してご来場いただき、家づくりをご検討していただけるよう、衛生ポリシーを定め、お客様をお迎えしております。
【ポリシーについて】
・スタジオ内の換気を定期的に実施します。
・打合せ時の社員のマスク着用、手指のアルコール消毒の徹底。
・お客様へ手指アルコール消毒のお願い。
・打合せ場所のテーブル、椅子、その他設備機器の除菌消毒。
・打合せ場所につきましては、スタジオのみならず、オンラインなどお客様のご要望に応じてご対応させていただきます。
※新型コロナウイルスの感染拡大状況によっては、ポリシー内容が変わる場合がございます。
お客様がご安心してご来場いただけるよう、今後も努めて参ります。
何卒ご理解の賜りますよう、よろしくお願い申し上げます。
見学会会場での手指消毒マスク・手袋(使い捨て)の着用にご協力をお願いします。なお、当日に咳や発熱などの体調不安がある方は、ご来場をお控えいただきますよう重ねてお願いします。
◆当日の連絡先
コールセンター:0120-489-175
※手袋は当方にてご用意しております。
皆様に安心してご参加いただけるよう、ご理解・ご協力の程、何卒よろしくお願い申し上げます。