【東京都杉並区】住みたいエリアで叶えた開放感のある暮らし。|OB様邸訪問会

物件の見どころ
①2面採光を活かした開放感の高いLDK
②舞台のようなこだわりキッチン
③家具までトータルコーディネートされたインテリア
住みたいエリアで叶えた「開放感」のある暮らし
賑わいのある街での暮らしを好まれる方、住宅街でゆったりとした暮らしを好まれる方など、「暮らしやすい」と感じる環境は、住まい手によって違うもの。
今回、お施主様のご厚意により見学会をさせていただくお宅は、都内の中でも交通の利便性が高く駅前には商店が立ち並ぶ賑わいのある街並みと、ゆったりとした住宅街が近く人気の高いエリアにあります。このエリアで、新築時に購入し住まわれていたマンションをフルリノベーションし2面採光の物件特徴を活かした開放感の高いお住まいにされました。
◆この物件の見どころ◆
①2面採光を活かした開放感の高いLDK
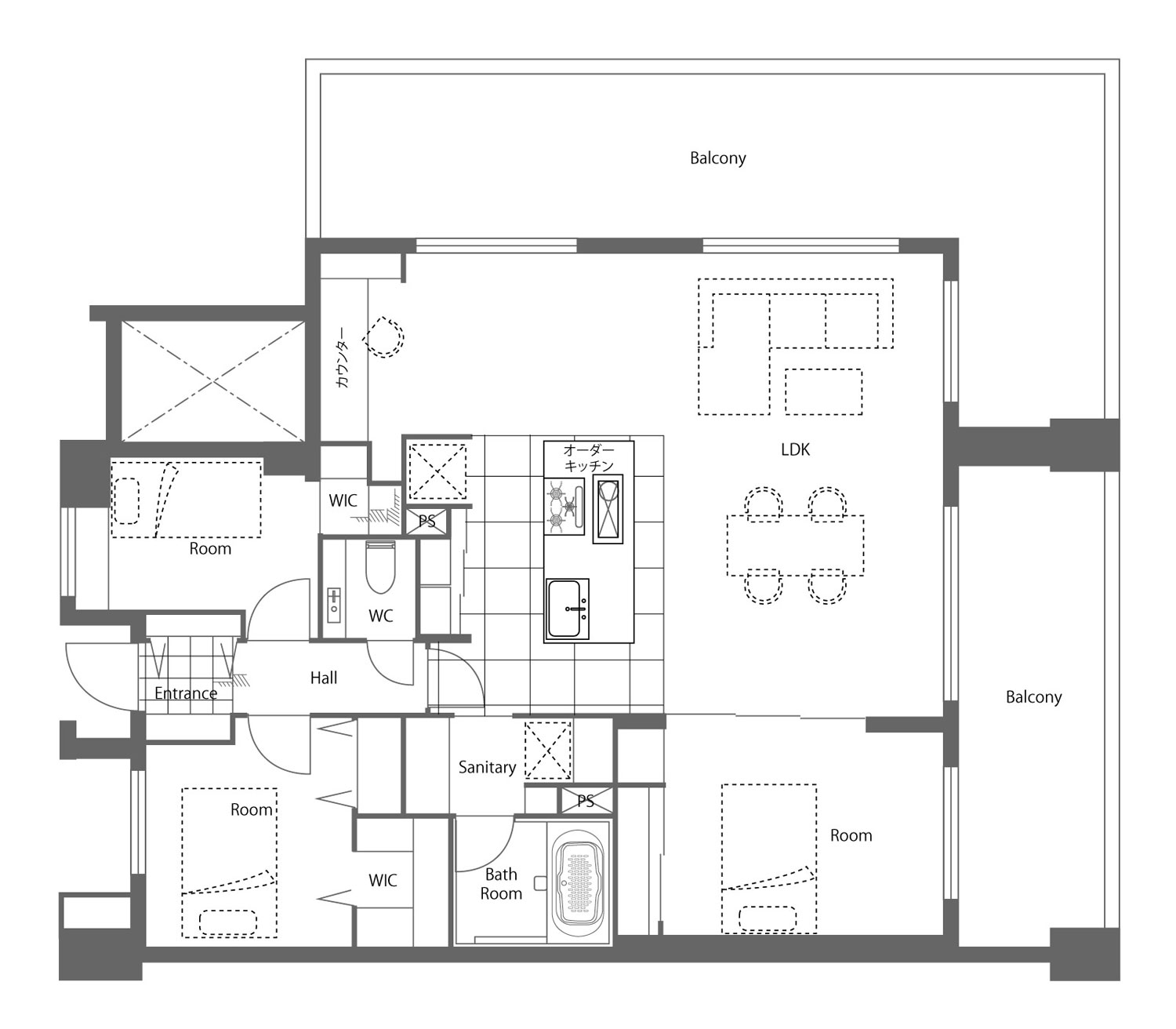
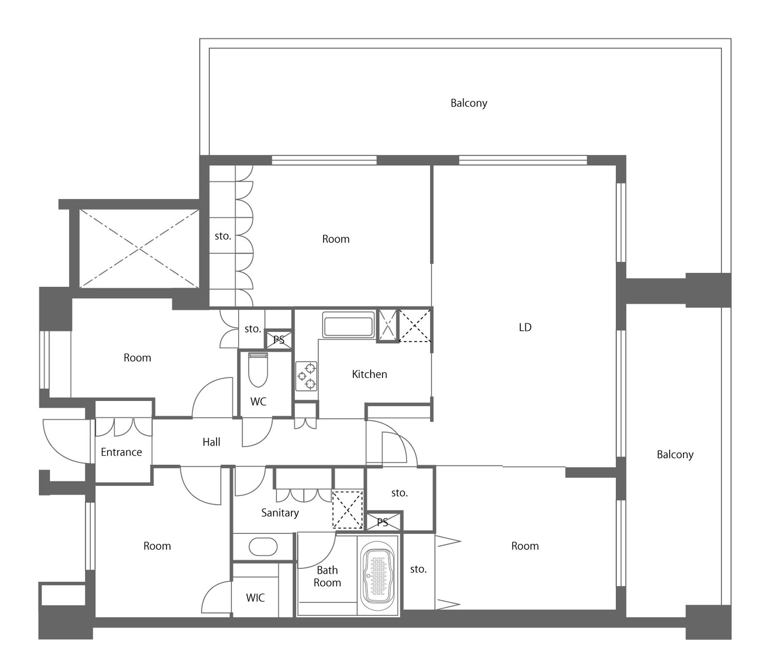
L字型に配置された広いバルコニーから、豊かな自然光が入る明るい住戸。しかし、リノベーション前はキッチンが独立し、居室が細かく仕切られた4LDKの間取りで自然光を感じづらい空間になっていました。そこで、将来的な可変性の余白を残した3LDKで、バルコニーに面して広いLDKを配置。周囲の景観を取込む開放感の高い空間に仕上がっています。
間取り:before▼

間取り:after▼

②舞台のようなこだわりキッチン
LDKの中心を彩る素材にこだわったオーダーキッチン。アイランド型で行き止まりのない動線と、調理中の油ハネを軽減してくれるアクセントウォールで、機能性とデザイン性を高めています。また、浴室洗面室と隣接させることで、短い家事動線で日々の家事をアシストする配置になっています。

③家具までトータルコーディネートされたインテリア
新居に合う家具に新調されたいということで、空間を彩る建材だけでなく、暮らしを彩る家具までトータルでご提案。設計段階で、設計者が空間に置く家を把握できていると適切な動線幅や統一感のある素材選びができ、空間の中で際立たせるポイントを持たせるなどメリハリのある空間に仕上げやすくなります。

【当日のご来場に際して】
●会場内では、当方で用意する使い捨て手袋の着用をお願いします。
●会場内での飲食・撮影はご遠慮ください。
●会場に駐車場はございませんので、お近くのコインパーキングをご利用ください。