WORKS 112
実例データ
- 概要:
-
マンションリノベ
- 床面積:
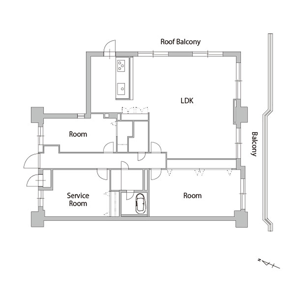
- 91.47㎡
- 間取り:
- 3LDK→1LDK
- 構造:
- 鉄筋コンクリート造15階建
- リノベ竣工:
- 2017年10月
- リノベ時築年数:
- 1999年7月
- 施工金額:
- 1,532万円
- 設計金額:
- 上記の15%
- 物件価格:
- –
- 家族構成:
- 2人家族
- 場所:
- 神奈川県川崎市
詳細を開く
LDKがオーディオルームに!趣味を満喫するリノベーション
海外赴任中、賃貸にしていた物件を帰国されるタイミングでリノベーションすることをご検討されたお住まい。「趣味の自転車とオーディオを存分に楽しめる住まいにしたい!」というご要望に合わせてプランを描いていきました。
今回のリノベーションでは、広い玄関のある1LDKの間取りを計画。広い玄関スペースでは、自転車の整備をするだけでなく、天井にはタイヤ等を吊り下げられる耐久性や整備道具の収納計画にも工夫を凝らしています。
1LDKの計画とした分、LDK空間を最大限に広く取っています。リビングでは、心ゆくまで音楽を楽しめるよう、ソファやオーディオの配置を計画。音の響きに配慮し、ソファ上部の梁を斜めにしたり、オーディオ機器が配置される後ろの壁は遮音壁とするなど、空間設計を入念にこだわりました。
また、LDKの中でも一際目立つステンレスキッチンは、空間を構成する家具のひとつとして捉え、LDKの中央に配置しています。キッチン横にはパントリー兼納戸としての機能を持たせた空間を計画。玄関とキッチンの両方からアクセスできるような動線を描くなど、空間の利便性を最大限に引き出す造りに仕上げています。
室内はお施主様の好みの配色で自ら塗装されるなど、細部に至るまで散りばめられたこだわりが、日々の生活を彩り豊かにしてくれる住まいになりました。
BEFORE
AFTER















