WORKS 113
実例データ
- 概要:
-
戸建てリノベ
- 床面積:
- 100.00㎡
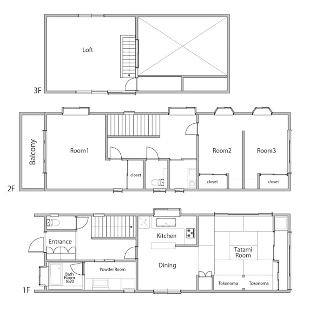
- 間取り:
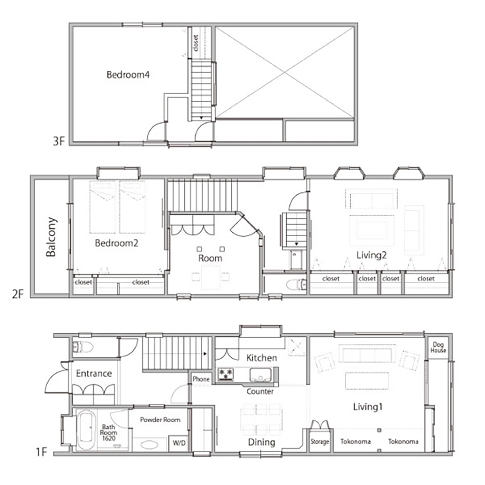
- 4LDK→2ROOM+LDK+L(リビング)+書道室
- 構造:
- 木造3階建て
- リノベ竣工:
- 2017年9月
- リノベ時築年数:
- 1987年6月
- 施工金額:
- 1,670万円
- 設計金額:
- 上記の15%
- 物件価格:
- –
- 家族構成:
- 2人家族
- 場所:
- 埼玉県草加市
詳細を開く
ご家族の新たな暮らしを迎え入れる戸建リノベーション
お子様が独立し、ご夫妻の子育てを支えてきた戸建て住宅も築30年を超え、老朽化とこれからの生活にマッチするようにリノベーションをご決断されました。
中でもリノベーションの焦点になったのは、間取りの整理整頓。旧間取りの大きな課題点となっていたのが、「1階に居間がなく、ダイニングキッチンも閉塞感があり使いづらいこと」、「2階では、奥様が運営されてる書道教室とプラベートスペースが混在していたこと」でした。
そこで1階は、閉塞感のあった独立型キッチンを、対面式キッチンに変更し、寝室になっていた和室を居間に改装することで、広々としたLDKを創出。また、茶室としてもともと設けられていた和室は造りが良かったため、ベースはそのままに趣のある和モダンな雰囲気に。毎週遊びに来られている娘様ご家族ともゆったり談笑出来る空間になりました。
2階では、親戚にのんびりとくつろいでもらいたいとのご要望で、子供部屋と書道教室の混在していた洋室を、ゲストリビングに改装。勾配天井を活かし開放感のあるデザインで仕上げています。書道教室は、使用されていなかったミニキッチンと広い階段廊下ホールに計画。通り間を設けることで、パブリックスペースを独立させた造りにしています。採光を得るために設けた内窓や、生徒の年齢層に合わせピンクをアクセントカラーに設けるなど、明るい学の空間になりました。
建物が持っていた特徴を最大限活かし、空間を暮らしに合わせて変化させることで、これからの暮らしを豊かに彩る住まいになりました。
BEFORE
AFTER













