WORKS 118
実例データ
- 概要:
-
マンションリノベ
- 床面積:
- 80.00㎡
- 間取り:
- 2LDK→1LDK
- 構造:
- 鉄筋コンクリート造
- リノベ竣工:
- 2018年7月
- リノベ時築年数:
- 1993年6月
- 施工金額:
- 1,629万円
- 設計金額:
- 上記の15%
- 物件価格:
- –
- 家族構成:
- 2人家族
- 場所:
- –
詳細を開く
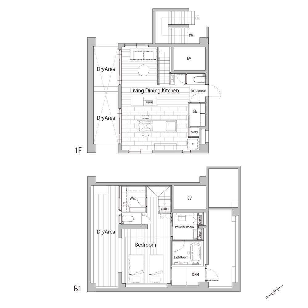
暮らしの機能をオブジェに仕上げたセカンドハウス
お施主様が所有している賃貸マンションの一室が空室となったため、ご夫妻が週末ゆっくりとした時間を過ごすセカンドハウスとして計画されたお住まい。
今回リノベーションの舞台となったのは、1FとB1Fの2層で構成されたメゾネット型の住戸です。80㎡という専有面積があるものの、2層に分かれていることから広さを感じづらい特徴を解消するため、エントランスとLDKの間に間仕切りを設けないワンルームで計画。広々とした開放的な空間を叶えました。しかし、広い空間では、冬の寒さが厳しくなります。そこで、LDKの中心に埋め込み型のエタノール暖炉を配置。上部には、壁かけTVを設置でき、オブジェのように仕上げています。
デザイン面では、セカンドハウスとしての生活感を無くした非日常感を演出するため、インテリアとしても映えるアイランドキッチンを選定。エントランスから見える場所に配置し、玄関を開けた際の印象にインパクトを設けました。また、ダークグレーとブラックを基調に、白い壁や天井とのコントラストが美しく見えるスタイリッシュな空間に仕上げています。
慌ただしく過ぎる日常から離れ、静かにゆったりと過ごせる空間で、日々の疲れを癒せる住まいになりました。
BEFORE
AFTER













