WORKS141
実例データ
- 概要:
-
戸建てリノベ
- 床面積:
- 113㎡
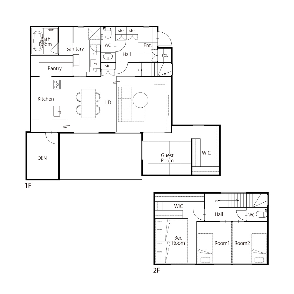
- 間取り:
- 4LDKS+DEN →3LDKS+DEN
- 構造:
- 木造2F建て
- リノベ竣工:
- リノベ竣工2023年7月
- リノベ時築年数:
- 当時48年
- 施工金額:
- –
- 設計金額:
- 上記の15%
- 物件価格:
- –
- 家族構成:
- 4人家族
- 場所:
- 神奈川県横浜市
構造から見直し叶えたホテルライクな快適戸建て住宅
元々はFREEDOMの新築部門で新築を探されていましたが、希望するエリアに良い土地がなく家探しが低迷していた所、祖父の家を受け継げることになり、フルリノベーションをして住まうことを決断されました。
いただいたご要望は、ホテルライクなデザイン空間と家族が集まりコミュニケーションが取れるLDKでした。打ち合わせを重ねる中で、お施主様が「家族の輪」を大事にされていることを感じ、解放感の高いLDKとリビングイン階段をご提案しました。既存の間取りは、間仕切りが多く各所要室がぶつ切りになっている印象でした。そこで、エントランスホールからリビングを介さず2階にあがる階段を、壁の位置を変え、リビングから上がれるスリット階段に架け替えを行いました。リビング内に、視線の抜け感がある階段を設けることで、ご家族が顔を合わせる機会が多くなっています。また、リビングドアはガラスタイプにすることで、玄関に入った所で家族の顔が見える空間になっています。
独立型のキッチン室は、家族とのコミュニケーションがとりやすい対面式キッチンに変更。収納力の高いパントリーを設け、生活感があるものは全て収納し生活感を出ない工夫をしています。また、キッチン・パントリー・水廻りを繋げ、効率的に動きやすい家事動線に。洗面室は、ランドリールームにも使える広々設計で、室内干しとガス乾燥機の乾太くんを置き家事時間の短縮を実現しました。
2階に配置した子供部屋は最低限の広さにし、客間兼プレイルームをリビングに隣接させることで、お子様が1Fで過ごす時間が多くなる間取りに。プレイルームは一部敷たたみにしているので、地べたに座って遊びやすいのと、お客様がいらしても寛ぎやすい空間となっています。
デザイン面では、リビングのTV裏に高級感のある明るいタイルを2階の階段吹き抜けまで連なるようにし、更に間接照明を施しました。対面になるキッチンは、ブラック系を採用。板張りの天井にし、温かみのある落ち着いた空間で、ホテルのような生活感の少ない空間に仕上げています。
その他に築年数が古いこともあり、解体後にシロアリ問題を抱えていることが発覚。構造屋さんに相談し、柱の多くを入れ替えを実行しながら構造の補強をしています。また、サッシを断熱性の高い物にすべて入れ替え、窓位置を変えたり足したりすることで、明るさをプラス。例えば暗かった2階廊下に、高窓や階段吹き抜け上部にも窓を設けることで、2階だけでなく1階も明るい空間を実現しました。
お施主様の不安を構造面からしっかり見直し、高い自由度で要望に応えることで、長く安心して暮らしていただける住まいに生まれ変わりました。
BEFORE
AFTER
























