WORKS147
実例データ
- 概要:
-
マンションリノベ
- 床面積:
- 69.10㎡
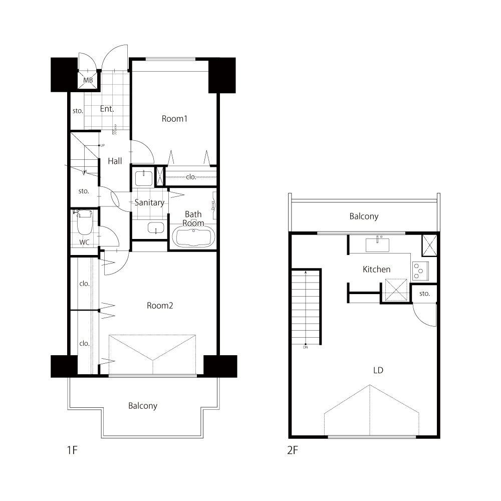
- 間取り:
- 2LDK→2LDK
- 構造:
- RC7階地下1階建
- リノベ竣工:
- リノベ竣工2023年
- リノベ時築年数:
- 当時築32年
- 施工金額:
- 1,643万円
- 設計金額:
- 上記の15%
- 物件価格:
- –
- 家族構成:
- 3人家族
- 場所:
- 東京都
メゾネットマンションのスペックを活かすフルリノベーション
眺望が良いメゾネットタイプの住戸に新築時からお住まいだったお施主様。住み慣れたお住まいでの今後の暮らしで気になる間取りや老朽化した住宅設備を一新されたいとリノベーションのご相談をいただきました。
頂いたご要望は、上階にLDKが配置されているのを下階に移動し、水廻りをまとめバリアフリーにしたいということ。また、友人を招きホームパーティーができる空間を希望されました。その他、空間イメージとして、ホワイトをベースにしたスッキリと清涼感のある空間デザインに床材はタイルにし、趣味のお菓子作りがしやすいアイランドキッチンにしたいと具体的なイメージをお持ちでした。
間取りのご要望で頂いたLDKの階移動ですが、こちらはマンションの管理組合様とお施主様、弊社の3社で何度も協議を重ねましたが、管理規約の変更がかなわず、規約の範囲内でご要望に沿う間取りのご提案をしました。
まず、最上階でメゾネットであることから、天井も高く、勾配天井や高窓もある特別なマンション。そのスペックを活かすべく、様々な工夫を重ねました。上階のLDKに新たにロフトを設け、収納空間を追加。さらに、勾配天井で異形状な壁天井に合わせ、無駄なく壁面収納をオーダーで造ることで、収納力が高く、スッキリとした空間を保ちやすくしています。三角窓からは、西日が入ることから見た目と遮熱にもなるウッドシャッターを施しています。
独立型で閉塞感があったキッチンは、自然光で明るく清潔感のあるアイランドキッチンに。天板にはクォーツストーンを採用したホワイトのオーダーキッチンで、お菓子作りや友人をおもてなししやすい造りになっています。
床材は、マーブルの鏡面タイルを採用し、白を基調としながら素材感の違いを取り入れることで洗練された印象の空間に仕上げています。
階段は、一部の壁を開放しアイアンの手すりを採用。新築の様なスッキリとしたデザインに仕上げました。
住み慣れたお住まいをこれからの暮らしに合わせて間取りを一新し、さらに長く快適に住まえる空間になりました。
BEFORE
AFTER




















