WORKS 109
実例データ
- 概要:
-
マンションリノベ
- 床面積:
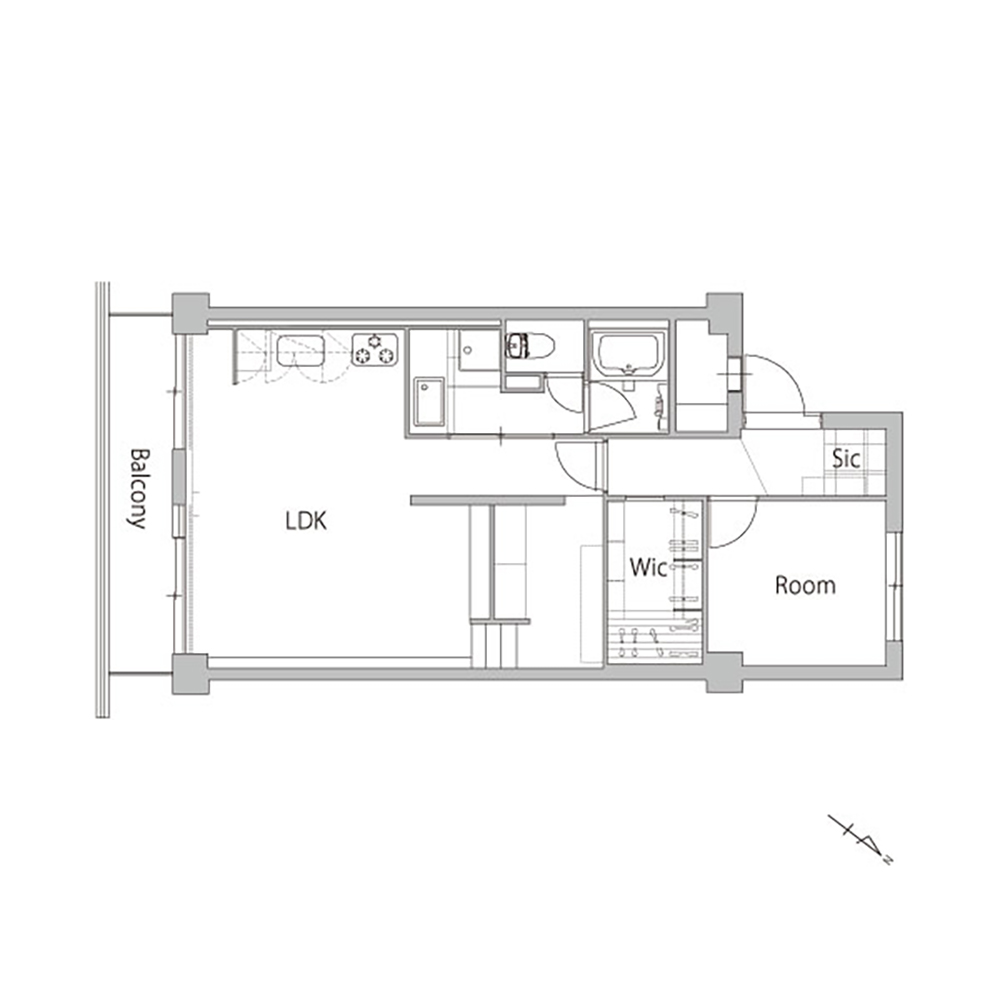
- 58.47㎡
- 間取り:
- 3DK→1LDK+DEN
- 構造:
- 鉄筋コンクリート造7階建
- リノベ竣工:
- 2017年1月
- リノベ時築年数:
- 1979年3月
- 施工金額:
- 461万円
- 設計金額:
- 上記の15%
- 物件価格:
- –
- 家族構成:
- 3人家族
- 場所:
- 神奈川県横浜市
詳細を開く
設計者と家具デザイナーのコラボリノベーション
賃貸で暮らしていたが、将来のことを考えて資産として中古マンションを購入して自己所有をしたい、というきっかけからリノベーションを検討されたお施主様。もともと住んでいたエリアでの居心地がとても気に入っており、同じ地域でこだわりの住まいを叶えたいということで、リデザインにご相談をいただきました。
こちらのリノベーションの大きな特徴は、家具デザイナーであるご主人様とリデザインの設計者のアイディアを組み合わせたプランニング。中でも、リビングでは普段の生活に加えて、フラダンス講師をされている奥様の練習スペースを両立する間取りを計画。スペースを確保するために、『収納できるテーブル』を造作し、リビングとしての表情と練習スペースとして表情を切り替えられる設計にしています。また、テーブルを収納することで生まれるスペースで、お子様がのびのびと遊べる点も魅力のひとつです。
ご主人様と奥様の作業場として、リビングから小上がりになった空間も用意。リビングとの間に壁を一枚挟むことで半個室のような空間に仕上げつつも、天井近辺はリビングと繋がるように設計することで、ご家族の気配を常に感じられる造りとしているところもこだわりです。
また、壁付けの棚やWIC、さらに作業場の床下を活用することで、豊富な収納スペースを確保しています。
間取りだけでなく、配置する家具のひとつひとつまでこだわることで、お施主様のライフスタイルに適した、快適な住まいを叶えました。
BEFORE
AFTER