WORKS 114
実例データ
- 概要:
-
戸建てリノベ
- 床面積:
- 106.12㎡
- 間取り:
- 3LDK→3LDK
- 構造:
- 木造3階建て
- リノベ竣工:
- 2017年12月
- リノベ時築年数:
- 1984年6月
- 施工金額:
- –
- 設計金額:
- 上記の15%
- 物件価格:
- –
- 家族構成:
- 4人家族
- 場所:
- 東京都世田谷区
詳細を開く
たっぷり収納で暮らしを快適に。クラシックデザインで叶えた戸建てリノベーション住宅。
賃貸で暮らしていたが、家賃がもったいないということで物件購入をご検討。もともと所有されていた車を敷地内に停めたいということから、中古戸建てのリノベーションを計画されました。ご要望として頂いていたのは、「趣味のアウトドア用品を収納できる場所の確保」と「明るいリビング」でした。
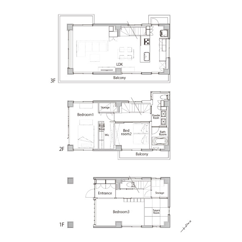
お二人が購入されたのは、3階建ての戸建て住宅。1階は天井が低く、窓も小さく暗い空間。2階も天井が低い造りではありましたが、道路側に面して連続窓があり、1階よりも明るい光を取り込める空間となっていました。一転、3階は勾配天井になっており、多摩川が見える眺望の開けた明るい空間に。上階にいくにつれて開けた構成となっていました。
そこで、家族みんながいつも使うLDKを3階に計画。また、屋根裏部屋を魅せるロフトに改装し、頭上の広がりを持たせることで、開放感のある明るいくつろぎ空間となりました。2階は主寝室と子供部屋に加え、水回りと大きなリネン庫を配置。家事動線をコンパクトにすることで、奥様の負担を軽減する造りとしました。1階には、アウトドア用品用の大容量の収納室と、お子様のプレイルーム兼ゲストルームを計画。プレイルームには大開口を設け、もともとあったベランダに室内からもアクセスできるように仕上げています。
デザイン面では白を基調に、建具やアクセントウォールで明るいナチュラルな雰囲気に。中でも、クラシックな印象のホワイトに塗装した框ドアは、使い込むごとにシャビーやアンティークな雰囲気に変化していきます。経年と共に現れる変化が、暮らしに味わいを与えてくれる住まいとなりました。
BEFORE
AFTER















