WORKS 119
実例データ
- 概要:
-
マンションリノベ
- 床面積:
- 103.95㎡
- 間取り:
- 5LDK→2LD+2S
- 構造:
- 鉄筋コンクリート造3階建
- リノベ竣工:
- 2018年11月
- リノベ時築年数:
- 1997年1月
- 施工金額:
- 874万円
- 設計金額:
- 上記の15%
- 物件価格:
- –
- 家族構成:
- 2人家族
- 場所:
- 東京都目黒区
平面から立体へ。視点の変化が導いた暮らしに寄り添うリノベーション。
賃貸住宅で暮らしていたが、家賃がもったいないということで家づくりを検討されたお施主様。当初は、新築注文の戸建て住宅を検討されていましたが、希望のエリアで売り土地がなく、中古マンションを購入しリノベーションを決意されました。
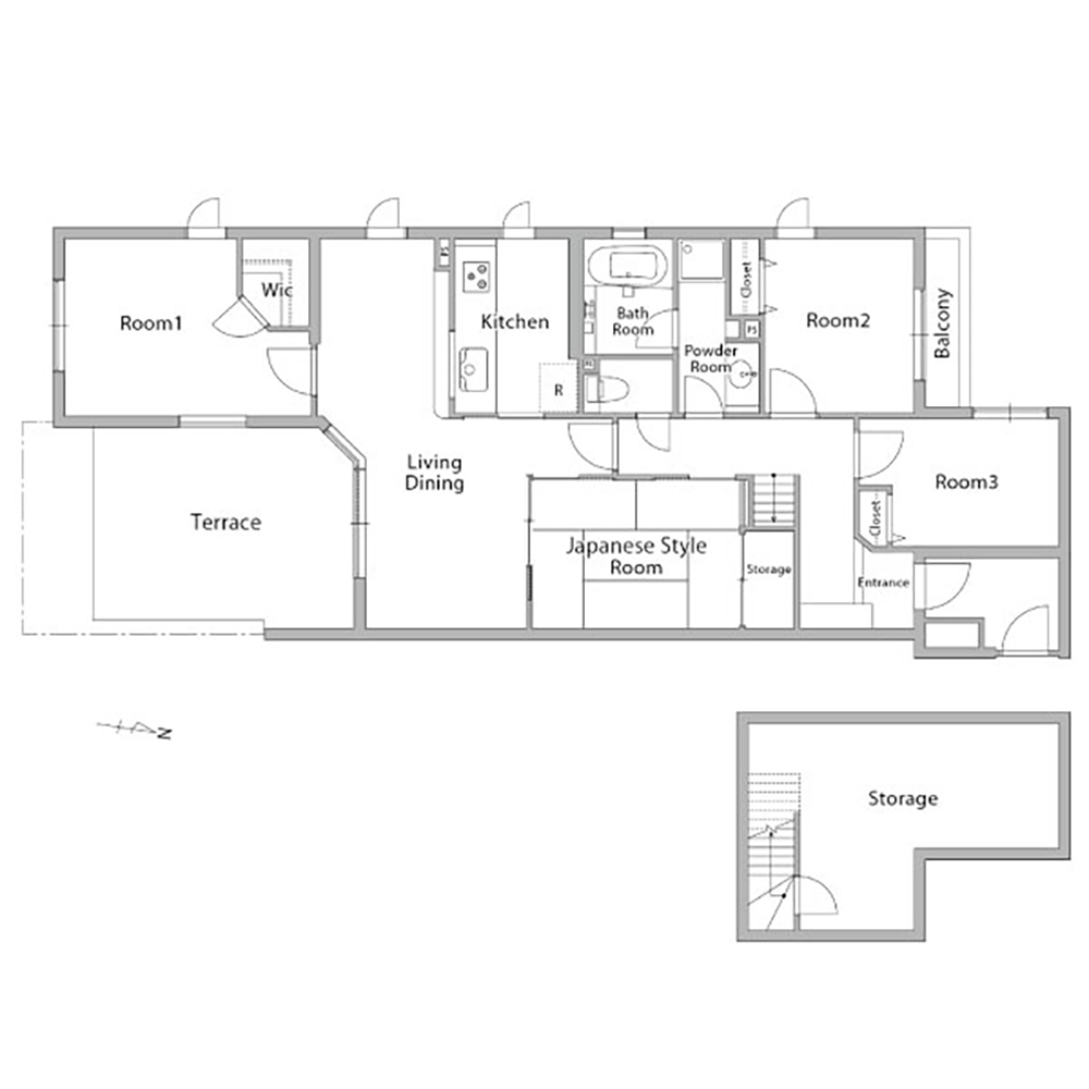
2LDKで広いリビング、収納を充実させた住まいを叶えたいということで、お二人が購入されたのは、100㎡以上の広い住戸。しかし旧間取りでは、玄関正面に階段室があるメゾネット型になっており、窮屈感を感じる造りでした。また、玄関付近の収納スペースが少なく、ゴルフバッグや靴などの収納としてはスペース不足。しかし、SIC兼WICという形でまとめてしまうと十分な収納量が確保できず、収納量を鑑みるとWICを別の場所にもう一つ設ける必要がありました。それでは、生活動線の快適性が損なわれることになってしまうため、SICとWICは切り離すプランで検討しました。
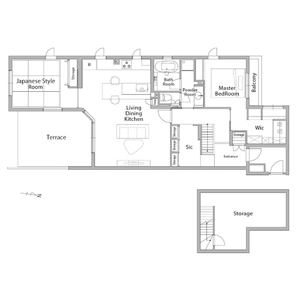
そこで、注目したのが元和室をSICにし、階段室に橋を設けたアプローチ方法を計画。こうすることで、玄関脇にあった洋室をWICとして広く取れ、目的に沿った収納スペースの配置計画と、無駄のない動線計画を両立。平面的ではなく、立体的に空間の検討を重ねることで導かれたプランになりました。また、開口がなく視線の抜けがないエントランスの壁一面を鏡にすることで、窮屈感を解消させています。
LDKでは、ゲストルームにもなる和室を隣接させ扉を引き戸にすることで、LDKに拡がりを創出しています。キッチンは機能面にこだわり、セパレート型でダイニングと一体にしたダイニングキッチンに。木調の柔らかな印象のキッチンに、造作でダイニングテーブルを設け、ナチュラルテイストで仕上げました。テラスから入る豊かな光と合わさり、家全体に暖かな雰囲気を届ける存在になりました。
BEFORE
AFTER













