WORKS 123
実例データ
- 概要:
-
マンションリノベ物件探しから
- 床面積:
- 64.48㎡
- 間取り:
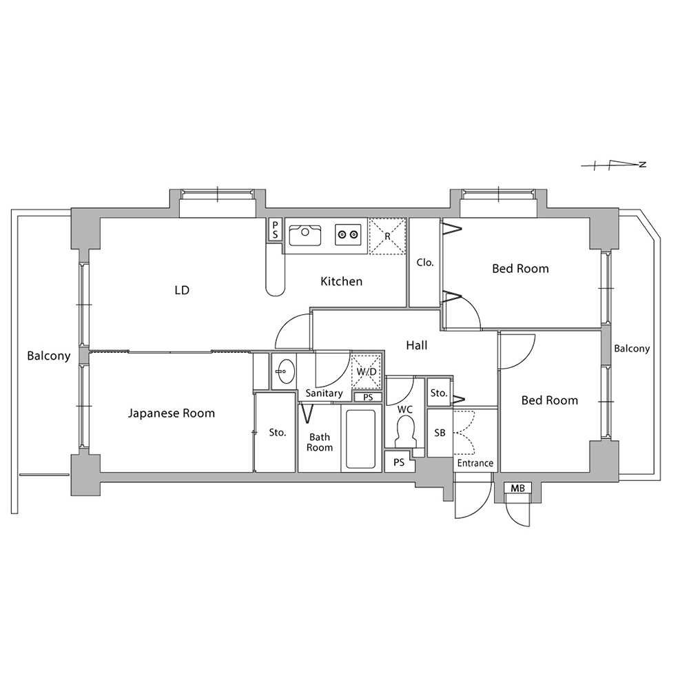
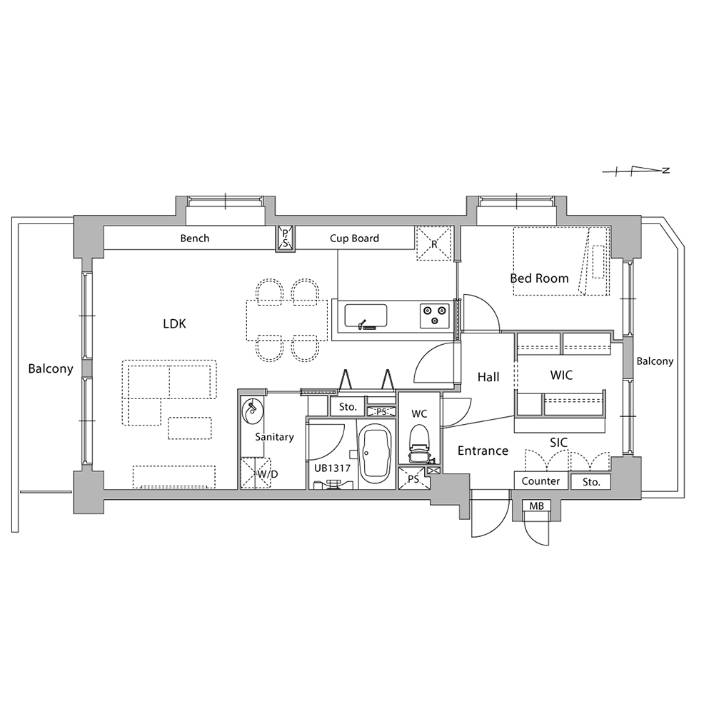
- 3LDK→1LDK+S
- 構造:
- 鉄筋コンクリート造8階建
- リノベ竣工:
- 2018年12月
- リノベ時築年数:
- –
- 施工金額:
- 954万円
- 設計金額:
- 上記の15%
- 物件価格:
- 2,740万円
- 家族構成:
- 2人家族
- 場所:
- 東京都足立区
詳細を開く
間取りの工夫で『魅せる空間』を叶えたリノベーション。
賃貸住宅に住んでいたが、家賃がもったいないということで住宅購入を検討されたお施主様。当時住まわれていたエリアで検討を重ねていく中で、中古マンションを購入してのリノベーションを決断されました。
お二人が購入されたのは、約64㎡の住戸。将来、お子様が誕生されても大きくなるまでは、一部屋で暮らす想定をされていたため、1LDKでの計画としました。空間づくりの中で頂いた要望は、インダストリアル系のデザインとご主人様こだわりの靴をディスプレイ出来る広い玄関、コミュニケーションの取りやすいキッチンです。
そこで、玄関側にSICスペースとしてオープンな空間を設け、寝室との間にWICを配置することで収納力が高く広いエントランスを叶えました。また、エントランスエリアを回遊動線にしたことで、来客動線と生活動線が分かれ快適な空間に仕上げています。LDKでは、入り口付近にキッチンを配置し、子供部屋を将来的に設けることができる広いリビングにしています。キッチンは、腰高のカウンターを設けることでリビングダイニングからの視線を気にせず会話を楽しめる開放感ある造りで仕上げています。
デザイン面では、WICとSICとを仕切る壁を、鉄黒で質感のあるマテリアルで仕上げたアクセントウォールがインダストリアルな印象を高めています。また、SIC側にオーク材で棚を設け、靴をショップのようにディスプレイ出来るように仕上げました。また、キッチンカウンターを、ひび割れないデザインコンクリートの「モールテックス」で仕上げ、インダストリアル系のデザインで住戸内のデザインに統一感を持たせました。
BEFORE
AFTER













