WORKS132
実例データ
- 概要:
-
マンションリノベ物件探しから
- 床面積:
- 92.50㎡
- 間取り:
- 3LDK+S→3LDK+S
- 構造:
- SRC10階地下1階建
- リノベ竣工:
- 2022年3月
- リノベ時築年数:
- 当時築20年
- 施工金額:
- 1,294万円
- 設計金額:
- 上記の15%
- 物件価格:
- –
- 家族構成:
- 単身
- 場所:
- 東京都新宿区
コンクリートと木の質感を楽しむ開放的な空間×マンションフルリノベーション
築20年の最上階住戸を購入されたお施主様。購入したタイミングで末永く快適に過ごせるコトを望まれ、設備面の一新と好きなデザインの空間を実現するためフルリノベーションを決断されました。
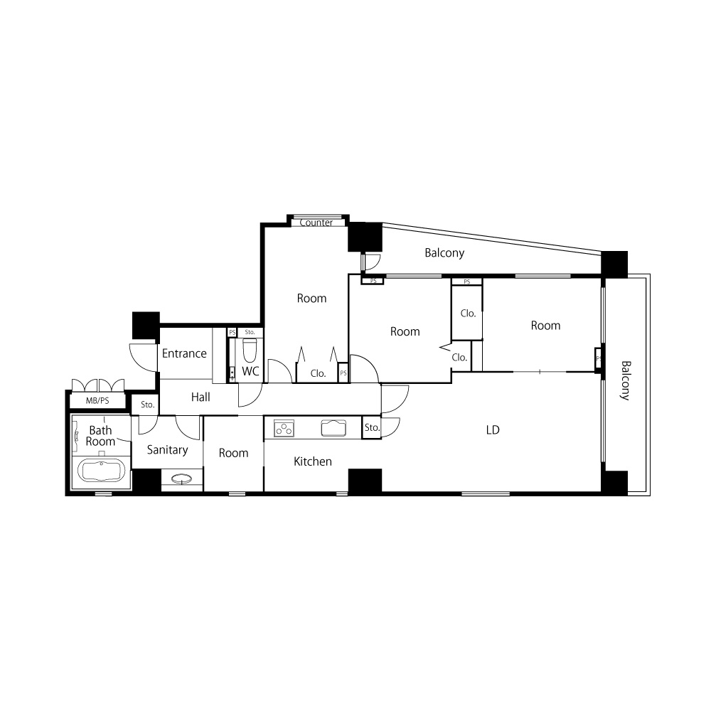
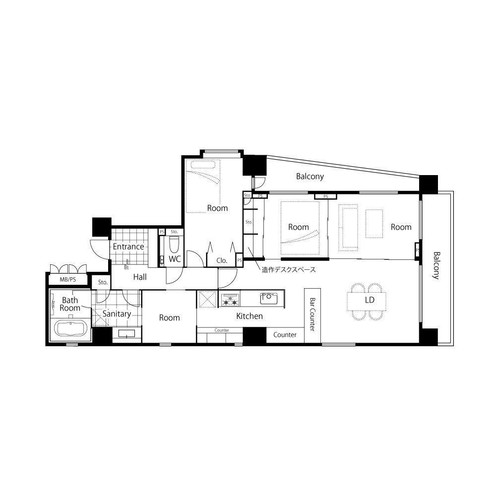
既存の間取りは、区切られた居室と閉鎖的なキッチンで閉塞感を感じる空間構成になっていました。そこで、友人を招くことが多いお施主様のライフスタイルから、プライバシー性に配慮した所要室を確保しながらも、開放感あるLDKとバーカウンターを備えたキッチンエリアをポイントにした間取りをご提案しました。
3方角部屋の南側に広がるリビングと隣接する洋室は造作の3枚引戸の建具になっており、普段は都心でありながら開放的で寛げる広々とした空間として、来客時には間仕切るなどフレキシブルに変化します。南側特有の豊かな自然光を、キッチンからリビングまで続くネイビーで仕上げたアクセントウォールが柔らかく受け止める空間に。また、マンションの最上階は全て解体すると、コンクリートの天井に断熱材を施している事が多く、コンクリート面を表して計画をする事ができないのがほとんどです。その為、天井を組む計画にしていましたが解体後、外断熱で施工されており躯体もきれいであったことから、お施主様のご意向で着工後に躯体表しへと計画変更。天高が上がり、照明計画も再検討したことで、より理想に近いデザインとなりました。
キッチンに隣接するバーカウンターや、使い勝手に合わせたデスクスペース、洗面台を、既製品ではなく造作によるオリジナル仕様で仕上げています。中でもこだわったバーカウンターは、キッチン空間全体と合わせて「ステンレス、集成材、黒アイアン、タイル」を使い、ほどよいカジュアルさのある大人な空間になっています。
ライフスタイルを間取りに反映させながら、建物が持つコンクリートの肌つやと木の質感を活かした空間に観葉植物や花の瑞々しさが映える住まいが完成しました。
BEFORE
AFTER
























