WORKS 107
実例データ
- 概要:
-
ピックアップリノベ
- 床面積:
- 82.62㎡
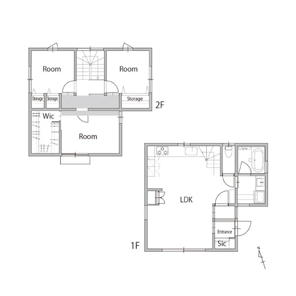
- 間取り:
- 3LDK→3LDK
- 構造:
- 木造2階建
- リノベ竣工:
- –
- リノベ時築年数:
- –
- 施工金額:
- 1,440万円
- 設計金額:
- 上記の15%
- 物件価格:
- –
- 家族構成:
- 4人家族
- 場所:
- 千葉県船橋市
詳細を開く
家族団らんをコンセプト にしたリノベーション。
築約34年の戸建リノベーション。10年前に購入した建物だったが、老朽化対策とご家族のライフステージの変化をきっかけにリノベーションを検討しました。
リノベーションの主軸となったのが、LDKと子供部屋。改修前の間取りでは、空間が持つ機能やスペースを中途半端にしか利用できなかったことも大きな不満に。特に際立っていたのがLDK。キッチンが必要以上に広く取られている点と、リビング・ダイニングとキッチンの間にあるカウンターが空間の自由を奪っているという課題がありました。
今回のリノベーションでは、LDKの間取りを大改修。まず手を付けたのが、キッチンの向き。空間の長辺に沿う形でキッチンを設置したことがスペースを圧迫する要因だったため、階段と繋がる短辺に納める形で配置しました。それにより、スペース効率の良い広い空間が生まれ、リビング・ダイニングにゆとりあるスペースを実現しました。
また、子供部屋においては、2人のお子様の成長に合わせて子供部屋を設けたいというご要望があり、2Fに2つの子供部屋を計画。これまでご夫婦とお子様がひとつの部屋で寝ていたが、それぞれのプライベート空間を設けたことで、現状のライフステージに合わせたプランに仕上げています。
同じ建物でも、間取りの描き方ひとつで住み心地は大きく変化します。それを、空間を最大限に活用する設計事務所ならではの手法を駆使して、快適な暮らしを叶えたお住まいとなりました。
BEFORE
AFTER














