WORKS 116
実例データ
- 概要:
-
戸建てリノベ
- 床面積:
- 103.51㎡
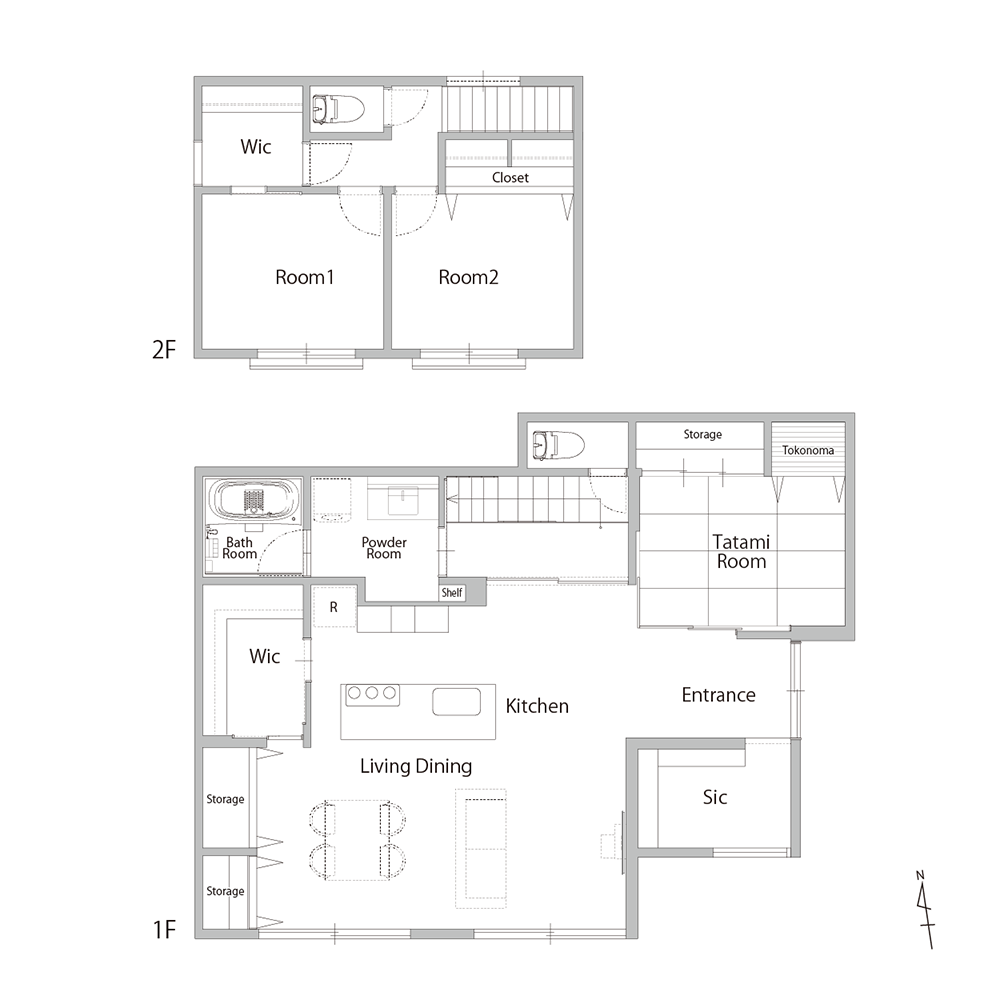
- 間取り:
- 4LDK→3LDK
- 構造:
- 木造2階建て
- リノベ竣工:
- 2018年2月
- リノベ時築年数:
- 1970年1月
- 施工金額:
- 2,178万円
- 設計金額:
- 上記の15%
- 物件価格:
- 1,750万円
- 家族構成:
- 4人家族
- 場所:
- 千葉県八千代市
詳細を開く
祖父から孫へ。世代と時代に合わせて柔軟に変化してきた2世帯住宅。
お施主様のおじい様から受け継がれる、築50年の戸建て住宅。お父様が約20年前に移住されたことをきっかけに二世帯住宅として増築し、今回、お孫様となるお施主様へ住まいのバトンが渡されたことをきっかけに、リノベーションを決意されました。
今回のリノベーションでは、3つの課題がありました。まず1点目が建物の老朽化対策、2点目は機能性とデザイン性に優れていること。そして3点目に、子育て世代でもあるお孫様世帯の暮らしにフィットさせることでした。
戸建て住宅では、パブリックスペースとプライベートスペースの階が分かれた構成になりがちですが、その中で各部屋に収納がある分散型収納とすると、食事と身支度の階も分かれ子育て世代には不便な側面がありました。そのため、こちらのお宅では1階LDKにファミリークローゼットを計画し、お子様の身支度をワンフロアで完結できるように設計しました。
それにより、ご家族が自然とLDKに集まる暮らしを叶え、奥様も家事をしながらお子様の様子を伺えるなど、効率性だけでなく、繋がりを育む住まいに仕上がりました。
世代を超えて子育てを支えてきた住まいは、今の時代と新たな世代の暮らしを反映し次の世代を育てていきます。
BEFORE
AFTER














