WORKS 120
実例データ
- 概要:
-
ピックアップリノベ
- 床面積:
- 171.31㎡
- 間取り:
- 3LDK→1LDK
- 構造:
- 鉄筋コンクリート造7階建
- リノベ竣工:
- 2018年7月
- リノベ時築年数:
- 1998年6月
- 施工金額:
- –
- 設計金額:
- 上記の15%
- 物件価格:
- –
- 家族構成:
- 4人家族
- 場所:
- 神奈川県横浜市
詳細を開く
2つの住戸を舞台に叶えた、趣味と暮らしを楽しむリノベーション。
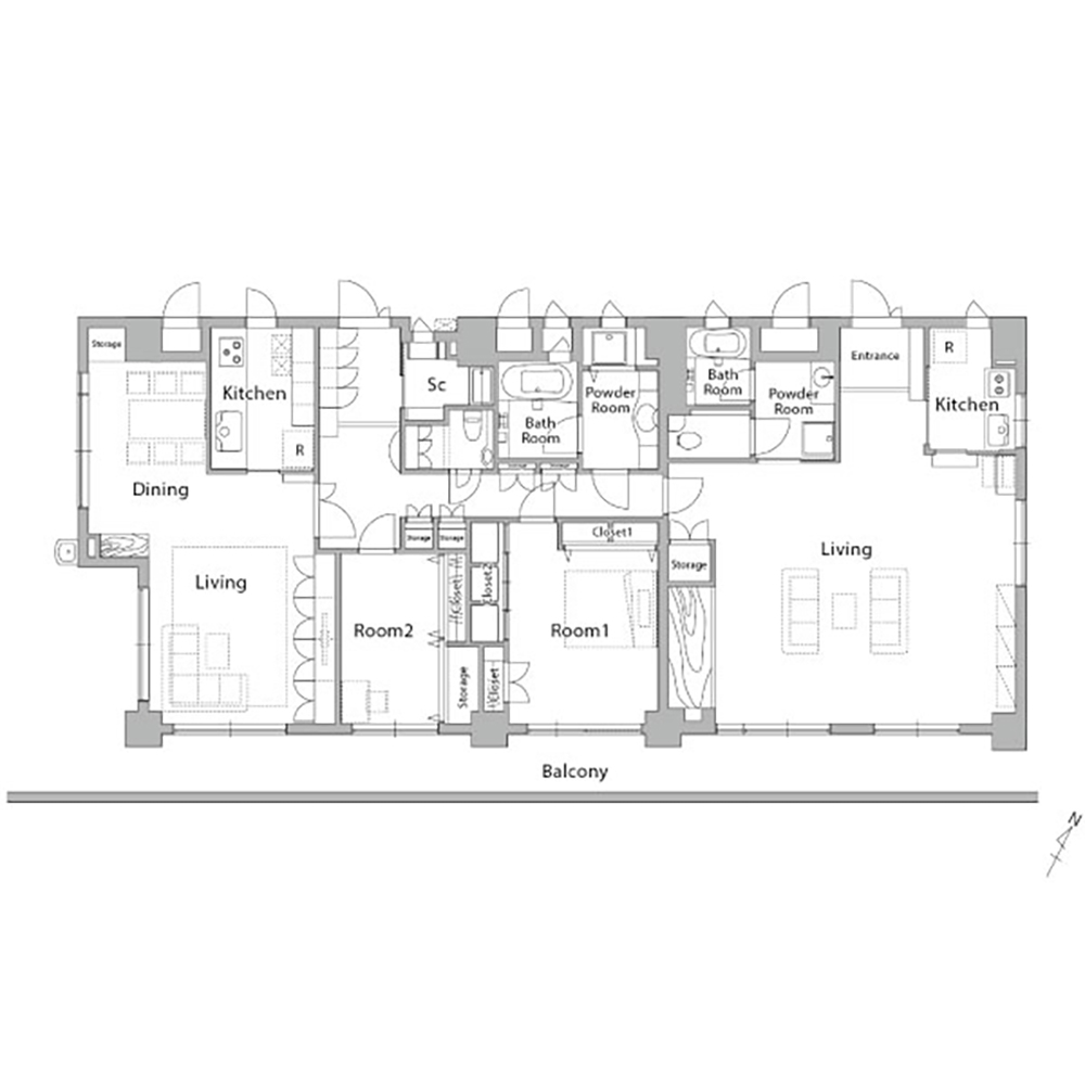
回のリノベーションテーマは、“広いリビングと家事導線の整理“。既存の間取りの課題点は、キッチンなどの水回りが2セットあり、1世帯で住むには不要な設備や居室が散見していたことです。また、元々が別の住戸のため、構造的に撤去することが出来ないコンクリート壁が住戸の中心に存在しており、自由な間取りを描きづらい点も、大きな課題点でした。
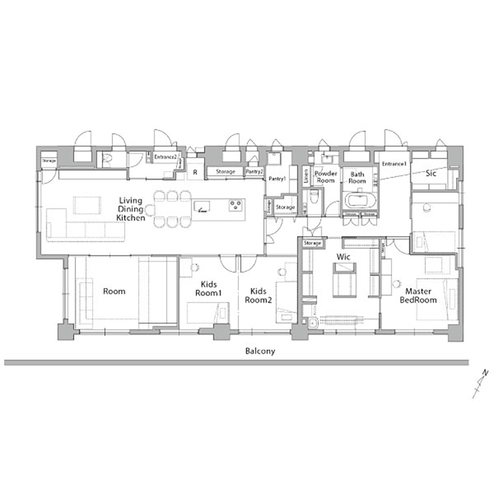
そこで、会社事務所として利用していた住戸側の玄関をメインエントランスにし、WICとSICを一体とした、一か所集中型の収納を住戸の中心に計画。大型の収納室の目の前には、ユーティリティ機能を備えた洗面室を配置し、周りを囲むように居室を配置することで家事動線が短くなり負担を軽減しています。
もう一方の住戸側には、子供室とLDKを配置。細長い形状で計画したLDKは、床材を変えることで、間仕切りのない広い空間の領域を分け、空間の目的を明確にしています。ここまではお施主様のご要望に沿い所要室を配置しましたが、必要な面積よりも住戸の方が広く、余剰空間がありました。また、物件竣工図を確認すると、住戸がペントハウスであることから、既存よりも天井の高さを上げられることが判明。そこで、リビングを単純に広くするのではなく、ご主人様の趣味であるゴルフのシミュレーターを置く提案をしました。リビングに隣接させ、LDKとガラスの可動式間仕切りで仕切ることで、家族やご友人と趣味を楽しむ時間を共有しやすく仕上げました。
物件の持つ特徴を的確にとらえ魅力を引き出すことで、快適な暮らしだけでなく、友人を招きたくなる彩り豊かな住まいになりました。
BEFORE
AFTER













