WORKS 122
実例データ
- 概要:
-
マンションリノベ物件探しから
- 床面積:
- 80.43㎡
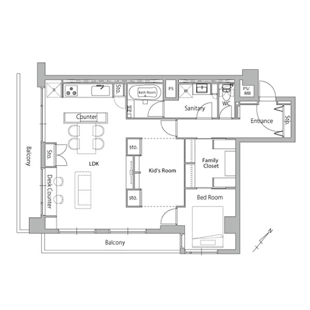
- 間取り:
- 3LDK→1LDK
- 構造:
- RC造地上5階
- リノベ竣工:
- 2018年10月
- リノベ時築年数:
- 1982年11月
- 施工金額:
- 999万円
- 設計金額:
- 上記の15%
- 物件価格:
- 5,380万円
- 家族構成:
- 4人家族
- 場所:
- 東京都文京区
緩やかに視線を遮る工夫で、『スッキリ暮らす』を叶えたリノベーション。
第二子の誕生をきっかけに、安心して子育てができる暮らしがしたいと、家づくりを決意されたお施主様。お子様の教育環境も重視され、文京区にある約80㎡の住戸を購入されました。しかし既存の間取りでは、ライフスタイルに合わないことから、リノベーションを決断されました。
今回のリノベーションでは、「明るいワンルームで、スッキリ暮らす」をコンセプトに、将来はキッズスペースを個室にできる様な可変性を持たせた1LDKで計画。広く設けたLDKとキッズスペースは、LDK側にTVボードを、キッズスペース側にはクローゼットと本棚を備えた機能的な壁で緩やかに空間を仕切っています。また、まとめて物を収納できるファミリークローゼットを設け、ユーティリティ(家事室)・ファミリークローゼット・寝室に白い引き戸を採用。家事動線に回遊性を持たせることで、普段は戸を開け放ちストレスフリーな空間を叶えました。来客時は、引戸を閉めることで壁と同化し、スッキリとした空間にお客様をお迎えできます。
デザイン面では、物件の特徴でもある大開口の2面採光を活かし、陽の光を美しく取り込むバーチカルブラインドを採用。木漏れ日の様に差し込む光が、白を基調とした室内に広がる明るい空間に仕上げました。キッチン周りでは、ダイニング側にカップボードを配置。カウンターよりも壁を高くすることで、調理器具などが散らかりやすい調理中でもLDK側からはスッキリと見えながらも空間の一体感を感じられる造りに。また、キッチン横に設けたタワー収納は、引き込みドアで家電製品を隠せる工夫をしています。
家族団欒の時間も、友人や知人を招いて過ごす時間も、様々なシーンに合わせて快適に過ごせる空間で、健やかな暮らしが育まれています。
BEFORE
AFTER













