WORKS 124
実例データ
- 概要:
-
マンションリノベ物件探しから
- 床面積:
- 78.10㎡
- 間取り:
- 3LDK→3LDK
- 構造:
- 鉄筋コンクリート造地上 54 階
- リノベ竣工:
- 2018年3月
- リノベ時築年数:
- 2004年12月
- 施工金額:
- 667万円
- 設計金額:
- 上記の15%
- 物件価格:
- –
- 家族構成:
- 3人家族
- 場所:
- 東京都江東区
詳細を開く
住みたいエリアで叶えた、住まいながら彩りを重ねるリノベーション
賃貸にお住まいでしたが、お子様の成長に伴い近い将来に手狭になることから、資産となる住宅購入を検討されたお施主様。もともとお住まいだったエリアの住みやすい環境に惹かれていたことから、同じエリアで中古マンションを購入しリノベーションすることを決断されました。
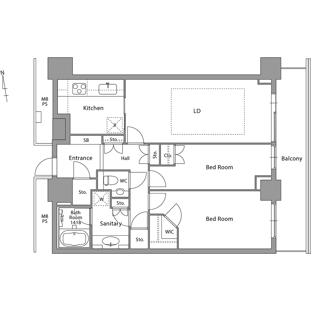
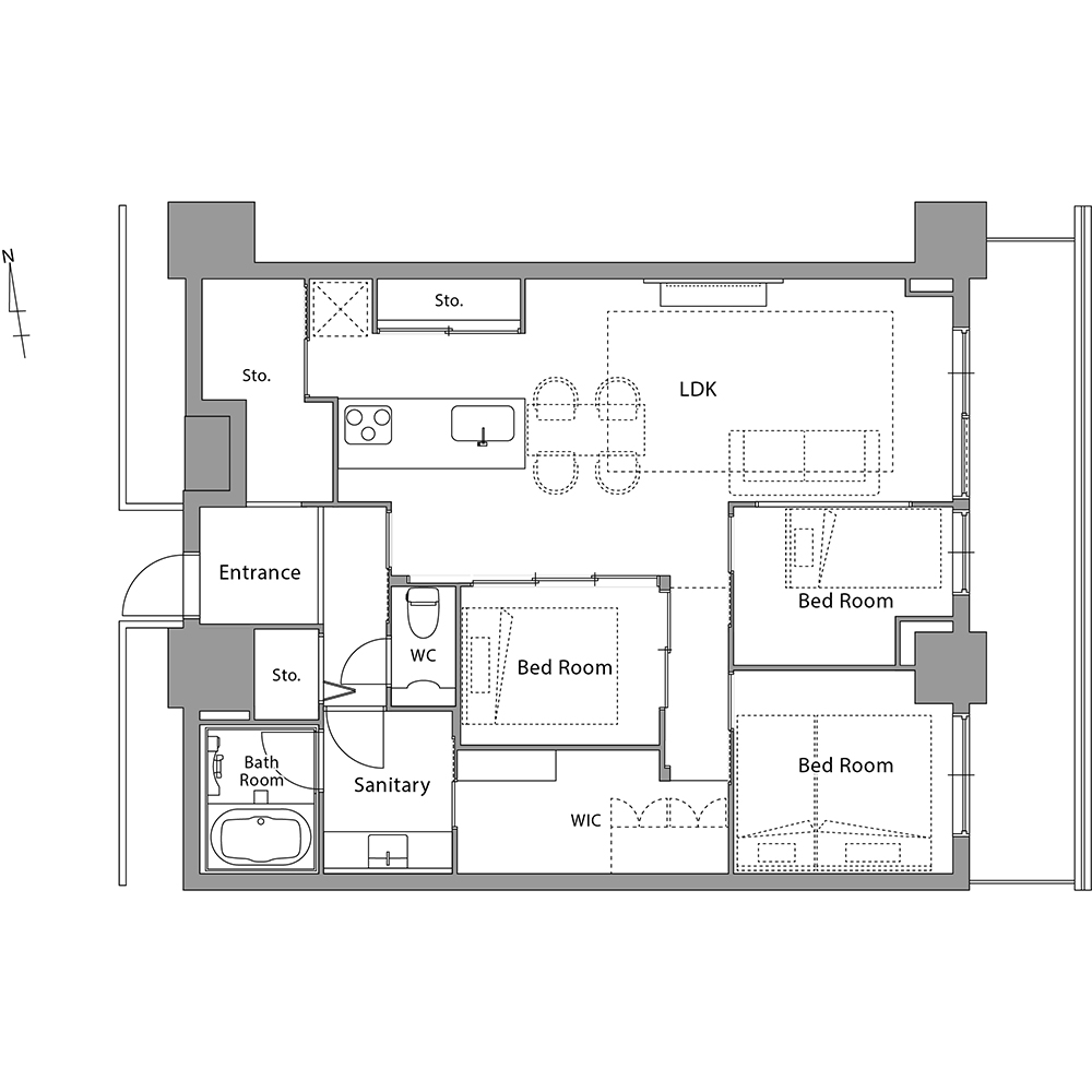
お二人が購入されたのは、家族が4人に増えてもゆったりと過ごしやすい78㎡の住戸。既存の間取りは3LDKのキッチンが切り離された空間でした。そこで、お施主様のライフステージに合わせやすい可変性と、1体型のLDK、機能的な収納室のある間取りを計画。また、家事・育児を楽しく協力をしながら分担されていたこともあり、お二人のアシストとなる動線を描きました。
デザイン面では、DIYで暮らしを彩っていく余白を残し、無機質ながら清涼感尾あるシンプルな空間に。また、壁のラインや天井下地など使える部分は”そのまま”を活かすことで、メリハリのあるコストバランスで、住まうごとに個性が増していく空間になりました。
BEFORE
AFTER












