WORKS 125
実例データ
- 概要:
-
マンションリノベ
- 床面積:
- 75.68㎡
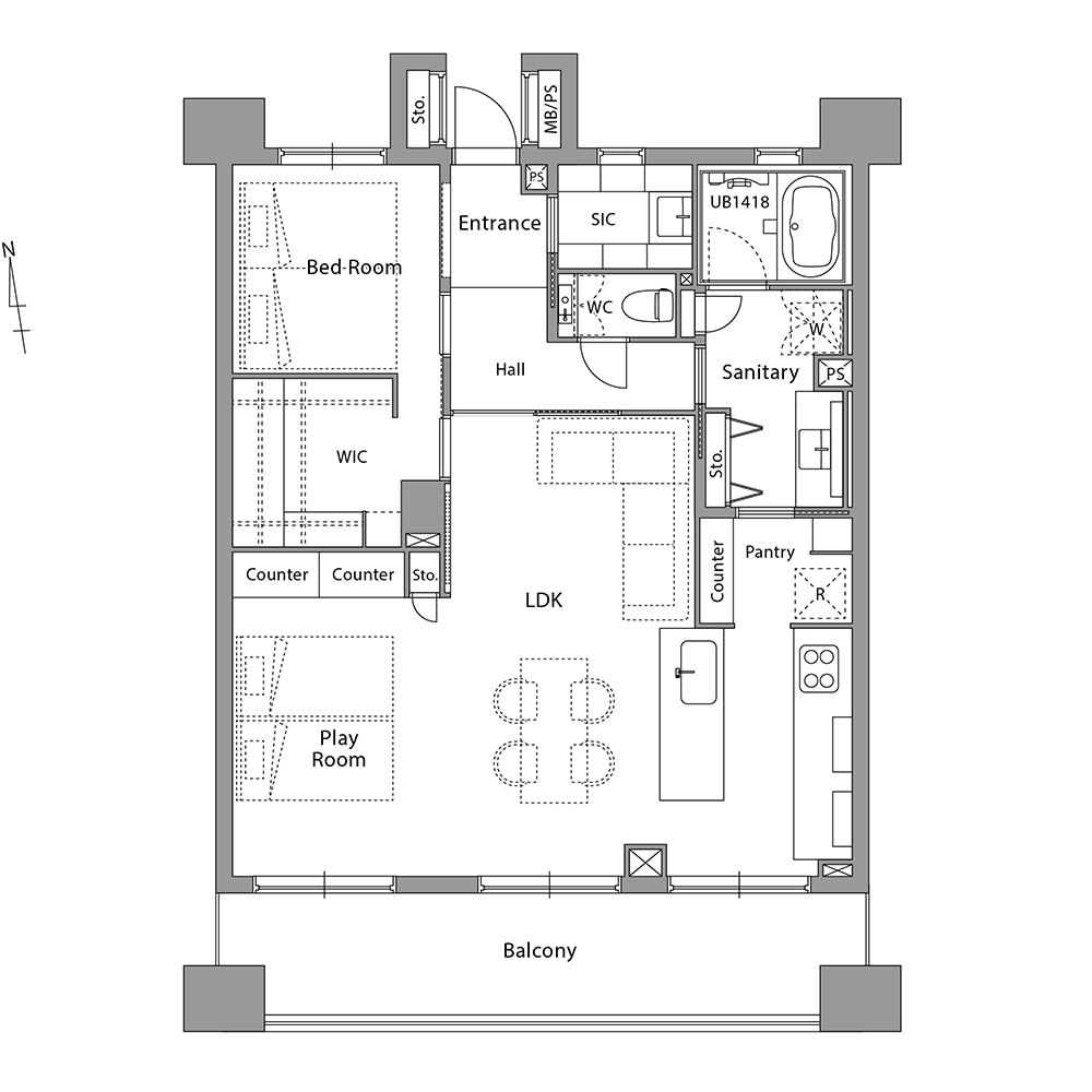
- 間取り:
- 3LDK→1LDK+WIC
- 構造:
- 鉄骨鉄筋コンクリート造10階建
- リノベ竣工:
- 2019年3月
- リノベ時築年数:
- 2002年1月
- 施工金額:
- 1,409万円
- 設計金額:
- 上記の15%
- 物件価格:
- –
- 家族構成:
- 4人家族
- 場所:
- 東京都江東区
暮らし方を形に。家族の時間が増えていくリノベーション。
賃貸にお住まいでしたが、お子様の成長に合わせ家づくりを検討されたご夫妻。住み慣れたエリアで、「使いやすい合理的な間取り」と「デザイン性の高さ」を実現できることから「中古マンションを購入しフルリノベーション」することを決断されました。
お二人が購入されたのは、ご家族4人がゆったりと寛げる75㎡の住戸。頂いたご要望は、共働きで忙しい日々の中で家事が極力楽になる家事動線と収納空間が充実した間取り。中でもキッチンは、使いやすさとデザイン性にこだわりを持って実現したいということ。そこで家事動線は、水回りを直線上に配置し、キッチンからパントリー・浴室洗面室までをスムーズに移動できる動線計画にすることで家事を同時並行でしやすくしています。また、洗濯機を埋め込み型にし、その上部にカウンタースペースを設けアイロンかけも出来る無駄のない配置に。パントリーと洗面室の間には引き戸を設け、お子様の安全性も考慮しています。収納空間については、SIC(シューズインクローゼット)・家族サイズのWIC(ウォークインクローゼット)・パントリーと、目的に合わせまとまった収納空間に。SIC(シューズインクローゼット)には、スロップシンクを設け靴の手入れも出来る工夫をしています。特に使いやすさにこだわったキッチンは、オーダーで作成し収納したいモノに合わせ引き出しの高さやサイズなど細部に至るまで、暮らしやすさ考え、反映しました。
デザイン面では、木の質感を感じられるようオークのフローリングを採用。素足で歩いた時に、さらりととした滑らかさが空間の心地よさを高めてくれています。玄関の天井には、飾り梁であえて暗がりを創り、玄関正面のLDKがより印象的に見えるようにもしています。
暮らしから検討を深めた回遊性の高い間取りを彩る様々なマテリアル。1つ1つに込めたこだわりが、快適な暮らしを支えています。
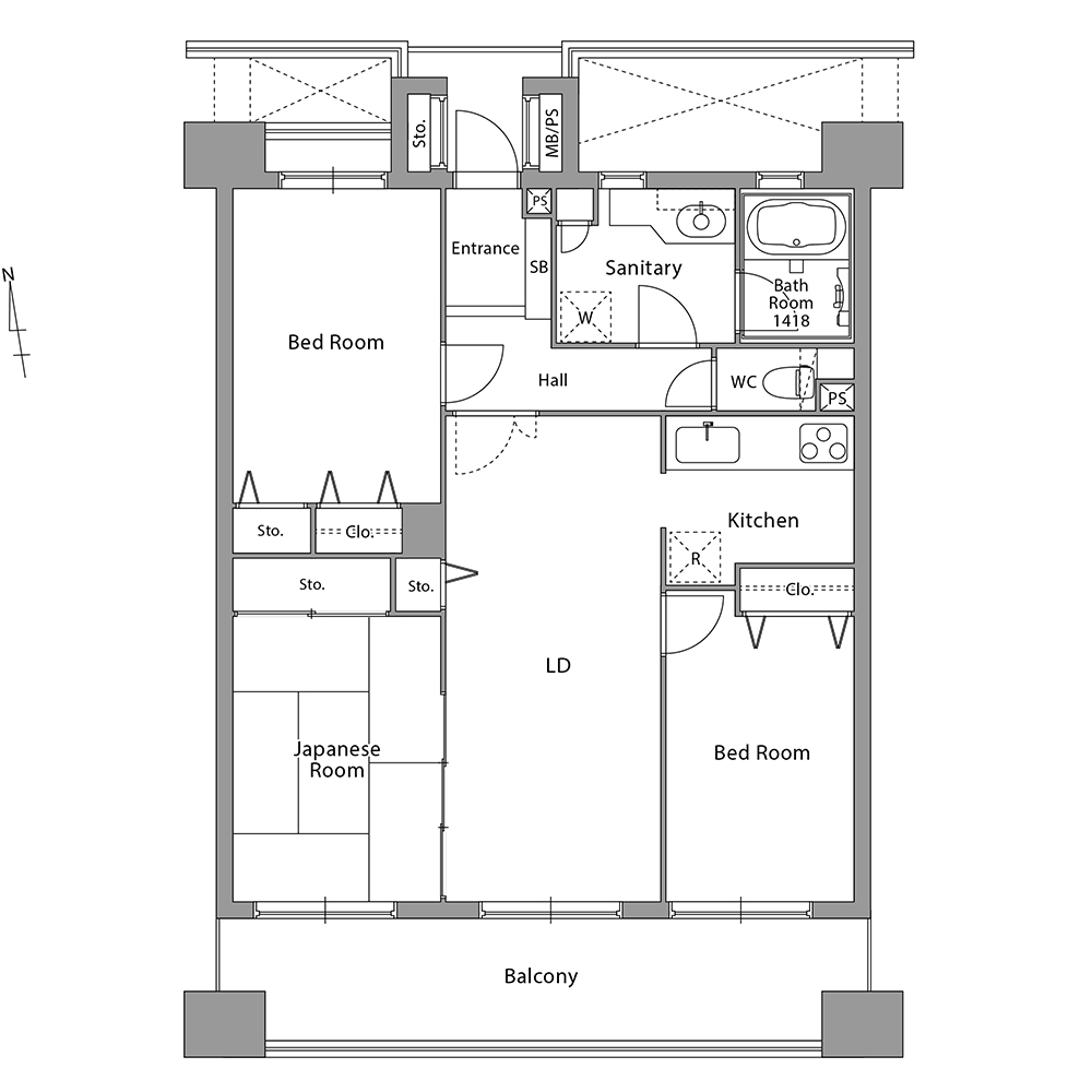
BEFORE
AFTER













