WORKS 129
実例データ
- 概要:
-
戸建てリノベ
- 床面積:
- 82.4㎡ 82.4㎡ 82.4
- 間取り:
- 3LDK→3LDK
- 構造:
- 木造2階建て
- リノベ竣工:
- 2021年1月
- リノベ時築年数:
- 当時50年越え
- 施工金額:
- 非公開
- 設計金額:
- 上記の15%
- 物件価格:
- –
- 家族構成:
- 4人家族
- 場所:
- 東京都世田谷区
受け継いだ住まいを新築以上の空間にする戸建てフルリノベーション
ご両親から受け継いだ築50年越えの戸建て住宅。新築での建替えを検討されていましたが、再建築不可のお土地であったことから、最低限のリフォームを検討されていました。そんな中で、リノベーションであれば新築同様の耐震性を確保しながら、思い通りの空間づくりが出来ることを知り、フルリノベーションでの家づくりを決断されました。
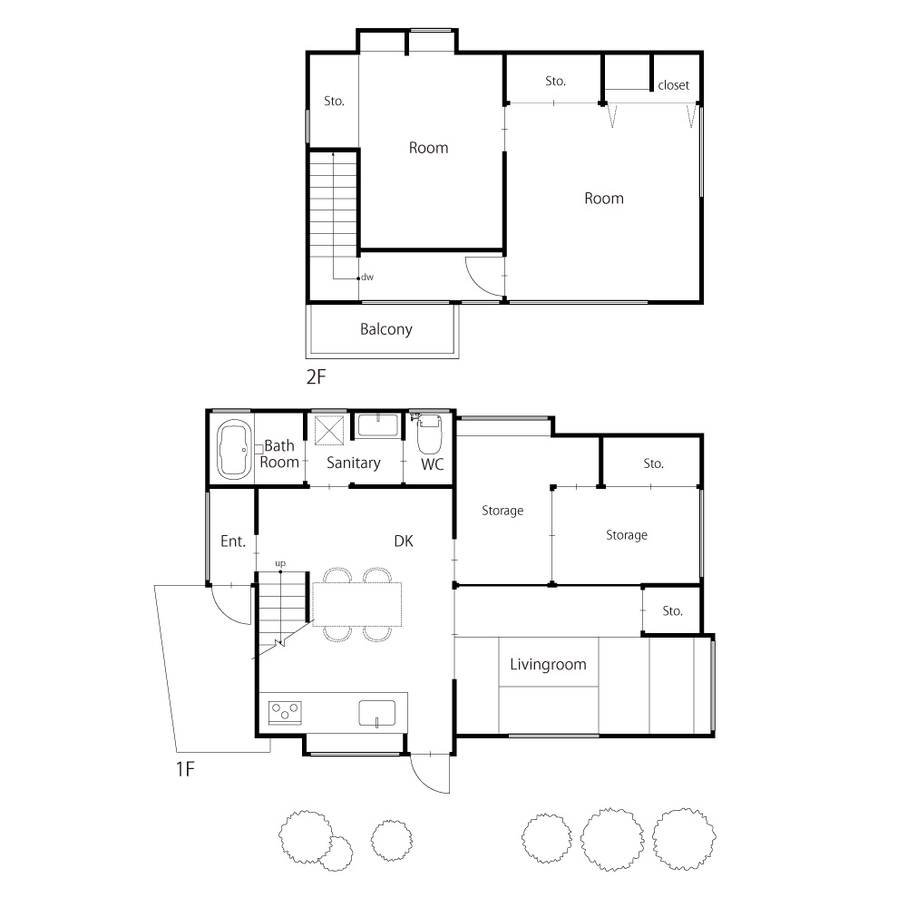
物件は、四方を住宅で囲まれた旗竿敷地にあり、既存の空間は日中でも照明が欠かせないLDKが1階にあり、日当たりが良い2階には寝室が配置された間取りになっていました。また、水廻りが家の中で点在し、必要な広さも確保されていなかったため、家事が必要以上にストレスになる間取りになっていました。そこで今回のリノベーションでは、明るく開放感のある空間とストレスフリーな家事動線、建物の印象を一新するデザインをメインコンセプトに、計画を進めました。
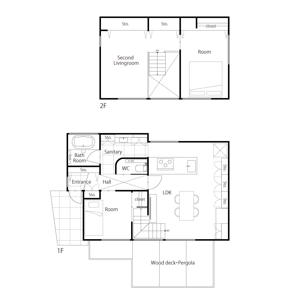
まず、日々の暮らしの中心となるLDKは明るく開放的な空間となるよう、リビング階段と吹抜けを組み合わせました。周囲の環境の中からわずかに抜けのある南西へ繋がるように2階に設けたフリースペースと繋げることで光や風が抜けるよう計画。また、室内から床続きのウッドデッキを設けパーゴラで囲うことで外部空間も室内に取り込み、面積以上の広がりが生まれるよう工夫しました。
次に家事動線は、キッチンから洗面室、洗濯機、浴室、物干し場のウッドデッキまで一続きの動線でまとめることでスムーズに動きやすい動線に。物干しに関してはお母さまもご自身で洗濯をして干すことができるように洗濯動線を考慮しました。また、これらの動線は回遊動線で繋がっており、複数人の利用でもストレスフリーとなっています。
デザイン面では、外壁にシャープな陰影を生むラップサイディングを採用し、ウッドデッキやパーゴラといった木部と組み合わせることで、バランスを取った外観デザインに。玄関前の動線には庇を設け雨の日の実用性とデザイン上のアクセントを兼ねています。内部空間には深みのあるアンティークのフローリングにシンプルな白い壁、アルミフレームにシャープな塗装の面材を組み合わせたキッチン、スチール枠のガラスドアに温かみのある羽目板の天井や化粧柱などといった様々な要素をうまく調和させるためにディテールを検討しました。エアコンや照明などの機器類は極力目立たないようにルーバーやスリットの中に納め、メインのマテリアルを引き立てています。
狭小地であっても外部空間との繋がりを創出する外構・窓廻りの計画に、コンパクトながら暮らしの機能性を無理なく一続きの空間に納めた動線・収納計画、吹抜けや階段による上下の繋がりと天井高さのコントロールによって生まれる立体的な空間。マテリアルの素材感を活かしたディテールワークなど、今回のリノベーションで取り入れた要素が、既存の思い出と調和し新築以上の魅力を持った住まいになりました。
BEFORE
AFTER



















