WORKS142
実例データ
- 概要:
-
マンションリノベ物件探しから
- 床面積:
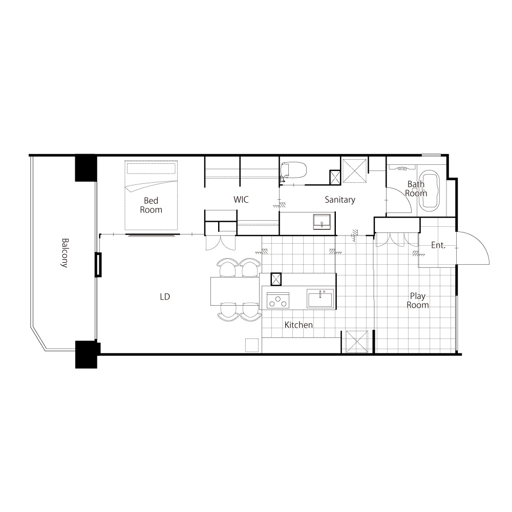
- 62.35㎡
- 間取り:
- 2LDK→1LDK+S
- 構造:
- 鉄筋コンクリート造
- リノベ竣工:
- リノベ竣工2020年2月
- リノベ時築年数:
- 当時築21年
- 施工金額:
- 非公開
- 設計金額:
- 上記の15%
- 物件価格:
- 非公開
- 家族構成:
- 2人家族
- 場所:
- 東京都品川区
詳細を開く
遊び心を持たせた廊下レスなマンションフルリノベーション
資産形成もふまえ、MS購入を検討されたご夫妻。ご主人様の実家のある品川区付近で狭くてもいいから3人家族に対応できる住まいを、物件探しからリノベーションを検討されました。
お二人が購入されたのは、約62㎡の住戸。解放感のあるLDKと無駄のない住空間、すっきりとした家事動線を希望されていたことから、空間をフル活用できる廊下レスな間取りをご提案しました。また、これから子育て世代へとライフステージが変化していくこともあり、将来、子供部屋として居室にもできるプレイルームを玄関横に設けたのも特徴のひとつです。壁一面にボルダリングを設け、お子様が誕生されるまでは、トレイニングスペースや書斎として多目的に活用できる空間になっています。
家事動線では、浴室→洗面→ウォークインクローゼット→寝室を一気通貫のレイアウトで配置。住戸の換気通風と家事効率の良い動線を検討したレイアウトになっています。
素材は質感にこだわり、床はサーモアッシュの無垢材で、壁は塗装を採用されました。どこか1か所には使いたいと希望された大谷石は、洗面で採用しています。キッチンは、メンテナンス性の良いステンレスを採用されました。キッチンの位置は元トイレがあった為、PS(パイプスペース)がキッチン前にあり、それを意匠的に隠すように、モールテックスを施した腰壁でデザインに仕上げています。
住空間をフル活用できる廊下レスな間取りと、こだわりの素材で包まれた空間が、これからライフステージが変化していくお二人の暮らしを支えていく住まいになりました。
BEFORE
AFTER






























