WORKS144
実例データ
- 概要:
-
戸建てリノベ
- 床面積:
- 142.84㎡
- 間取り:
- 5LDK→3LDK+L(二世帯の為サブリビングあり)
- 構造:
- 木造2階建て
- リノベ竣工:
- リノベ竣工2021年1月
- リノベ時築年数:
- 当時築22年
- 施工金額:
- 2,239万円
- 設計金額:
- 上記の15%
- 物件価格:
- –
- 家族構成:
- 6人家族
- 場所:
- 神奈川県逗子市
詳細を開く
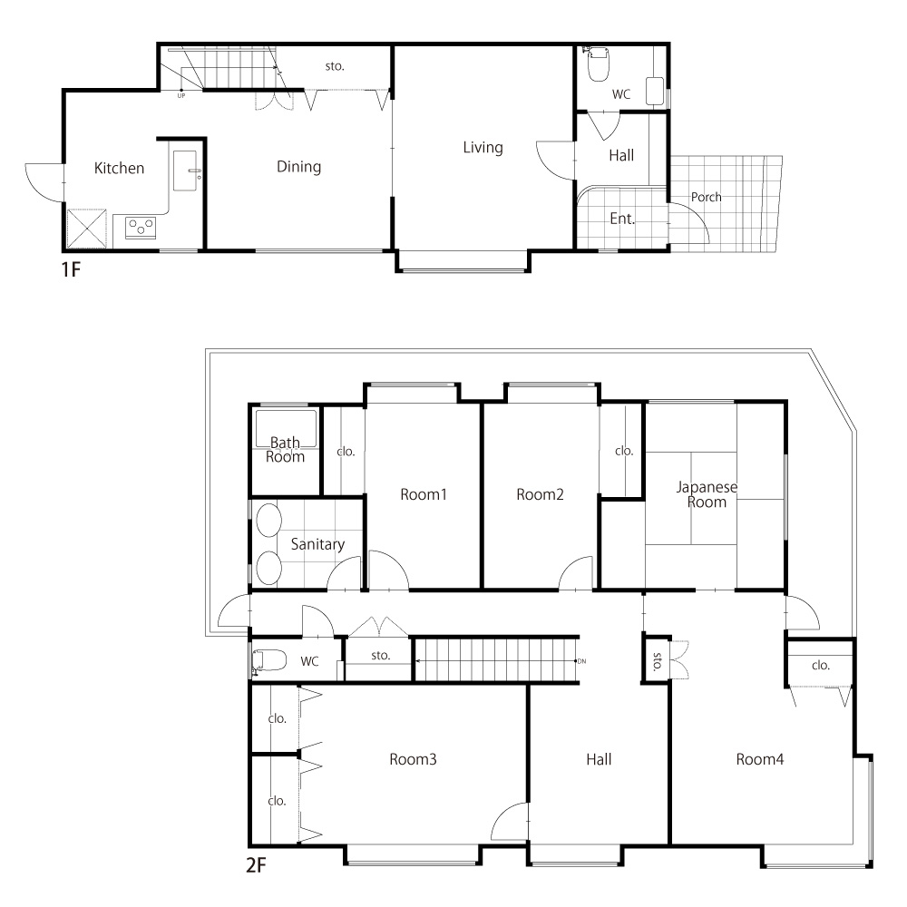
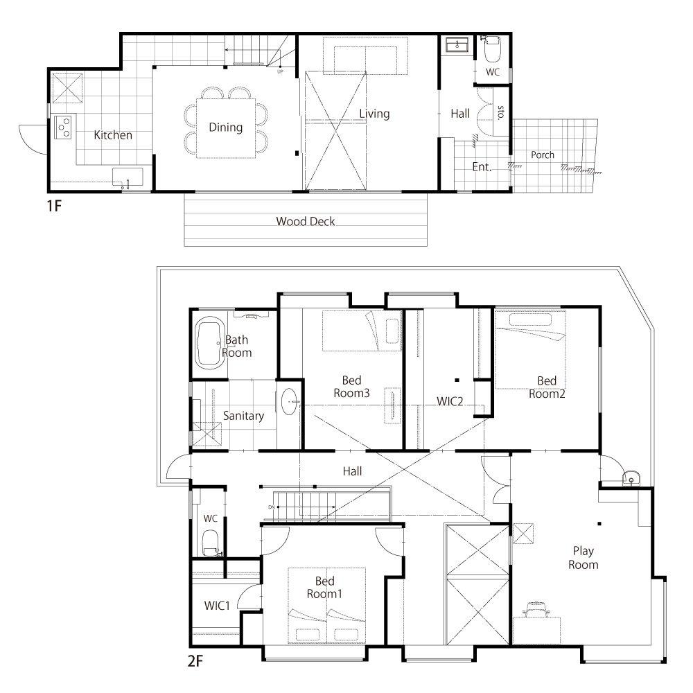
開放感の高い住まいへ。2世帯住宅へのフルリノベーション
お子様の誕生を機に、ご両親の持ち家を2世帯住宅へリノベーションし同居を決断されたお施主様。各世帯が玄関からすべて分かれている完全分離型ではなく、玄関と水回りは共同で使い、その他の居室は人数や用途に応じてしっかり確保しつつ、湘南エリアという立地を活かした、開放感が高く現代の暮らしに合わせたプランを希望されました。
既存住宅は、築20年程の木造在来工法でポテンシャルが高くしっかりとした造りでしたが、居室が間仕切り壁で小さく囲われており閉塞感が強い印象の建物でした。そこでご提案したのが、新たに「吹き抜け」を取り入れた、開放感ある住空間です。
間取りは、2階への導線を考え階段を架け替え、子世帯のプライベート空間としてサブリビング→主寝室→W-IN(ウォークインクローゼット)と一体としてして使えるように間取り変更をしています。また、休日に友人を招いてBBQをしたりするとのことで、集まれるLDKとそこから繋がる広いウッドデッキを設けています。
既存住宅で思い入れがある壁の羽目板材を再利用したいとのご要望に応え、2Fの天井材として復元をしています。こちらは、リビングに設けた吹き抜け越しに見える場所になっています。また、リノベーションで新たに取り入れた建材との雰囲気とも調和するように素材選びにも配慮しました。
内窓やガラス引き戸など、ガラスを多用し開放感を高めた空間を、ご家族の思い出がそっと見守り暮らしを紡いでいく住まいになりました。
BEFORE
AFTER























